Hero photograph
 
Photo by Hilary Johnson

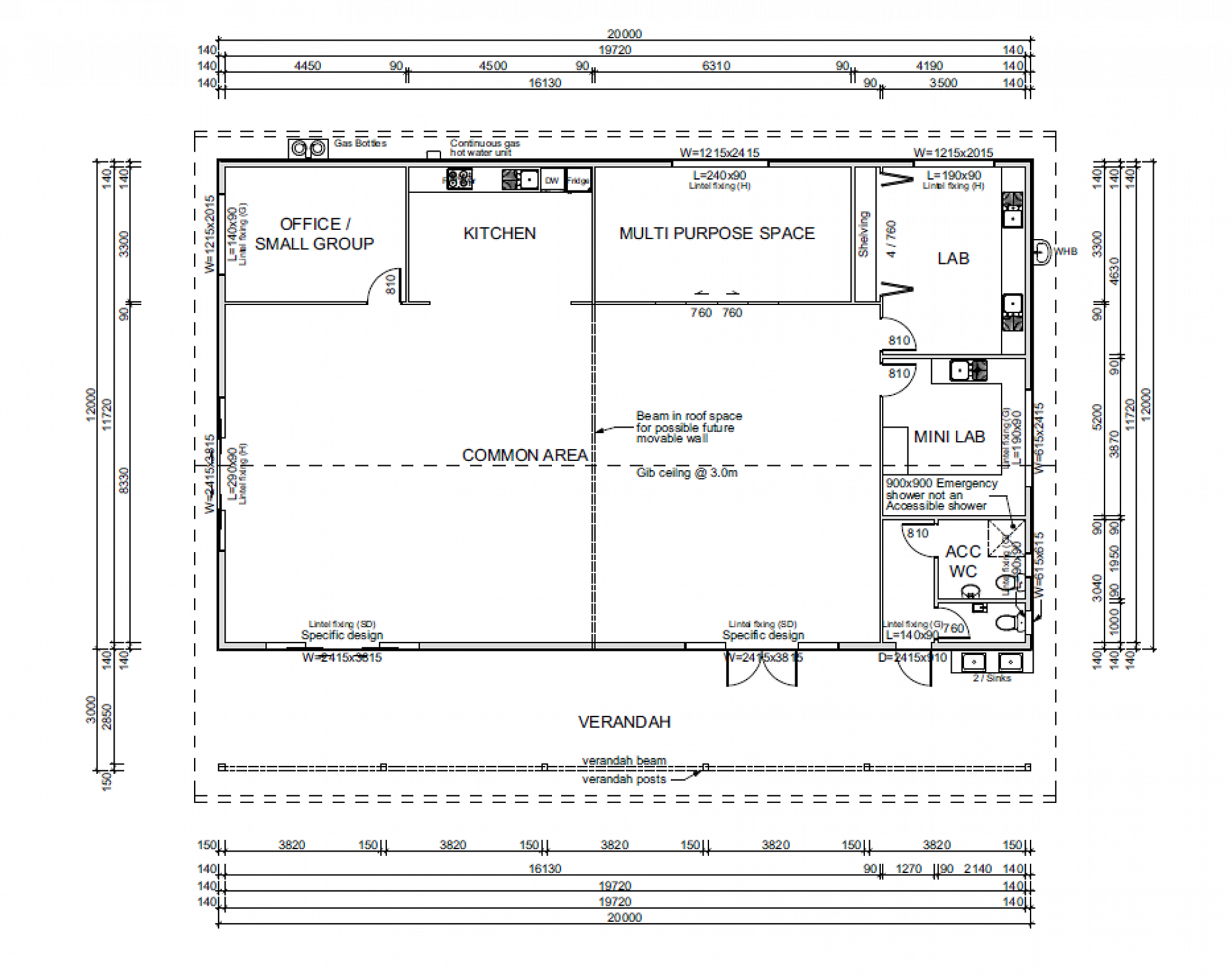
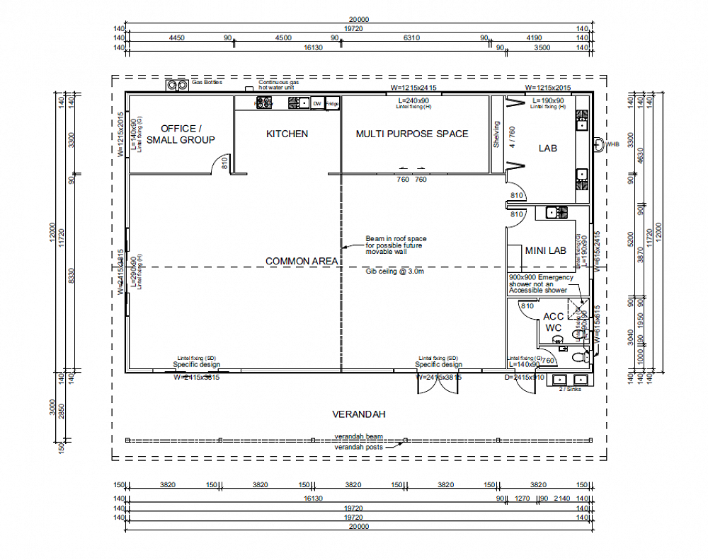
Exciting update on Innovative Horticulture Project

Hilary Johnson —

It is with great excitement that the Katikati Innovative Horticulture Trust and the Katikati College Board of Trustees announce that they have signed a memorandum of understanding that allows the building of the new purpose-built horticulture educational and training facility to begin.

This fantastic community project now needs to secure its final donations to complete the build. 

If you would like to help please deposit your donation on-line into our BNZ Katikati Branch account  02-0340-0045184-000 putting your name as a reference.

Email kkhort_trust@katikaticollege.school.nz with confirmation of your donation and we will then email you your receipt. If you prefer, email us first to request an invoice.

The Trust is a registered charity, so your donation is tax deductible.

While the Trust is GST registered, donations are not subject to GST.   

Image by: Hilary Johnson