Hero photograph
 
Photo by Hilary Johnson

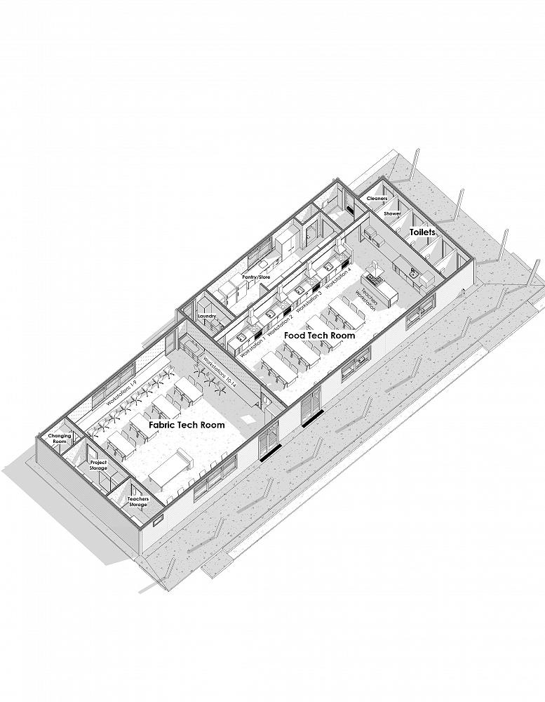
Technology building update

Simon Finnimore —

The Technology Stage II build is expected to begin in September.

It will consist of two classrooms for Soft Technology and Food Technology. Also included are extra toilets and covered walkways around two sides of the building. During construction a fence will be erected and access to the College grounds from the western gate on Beach Road will be limited to contractors. Completion of the block is expected to be late December.

Please note that with the construction of the Technology block and the Administration block refit, there will be no entry or parking at the western end of the front field. This will mean parking in the College grounds will be at a premium and Year 13 students will need to park off site.