Hero photograph
 

Library Project

MGS —

The culmination of many...

...months of prayer and planning is starting to take shape in the Secondary Library redevelopment.

The space is going to be extraordinary. A hub for the school, a beautiful centre-piece, and a testament to God’s working through so many talented and dedicated people.

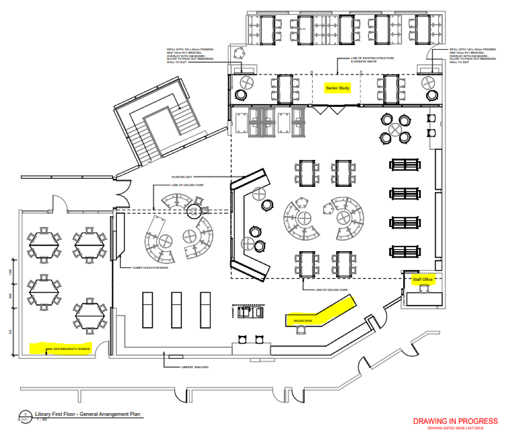
The library’s heart features a modern reading and research hub – a comfortable and encouraging space. Adjacent is a senior study annex created by a floor to ceiling glass wall – a quiet space that retains both its connection to the library and the natural light. A sleek library teaching environment has also been created by a generous double-opening through to an adjacent classroom.

Demolition began on 31st October so that significant structural engineering elements could be completed to support the changes that are to come. As with most building projects (and life in general) the structural foundations take longer than everything else combined – but are worth the time and effort.

Works like this would normally be scheduled for break-time. But because of the extensive scope of the project, work has had to begin ahead of the break and will continue through into early next year. Apologies to those who are experiencing this first-hand. It will soon become a quiet space once again.

Becky and Murray (our fantastic library staff) are currently working tirelessly down the corridor in their Bibliophile Tardis, pressing onwards, toward the goal, to win the prize!

Ben Knowles

A Note from the Secondary Library

As we await the opening of the refurbished library, we have been making the most of our curious state of affairs. Mobile Library visits to Middle School classes have produced wonderful fruit, offering students the opportunity to exchange books at our ‘Library-on-Wheels’. We are also running ‘The Library Door Challenge’ – each day a new question or task is given for students to answer, and every five challenges they complete earns them a prize. This has been very popular, with (at the time of writing) 76 students taking part! Some notable challenges include, ‘Recite Pi to as many decimal places as you can’, ‘What is your favourite Bible verse?’ and ‘What is Rumpelstiltskin’s special skill?’

Amidst all this, we are curating our collection and refining our systems in anticipation of the new library. A massive thank you to everyone who is making this refurbishment happen. We look forward to stewarding it well, and welcoming you there in due course.

The Secondary Library Team