Hero photograph
 
Photo by Oaklands Redevelopment

A peek inside the new admin block

Oaklands Redevelopment —

Our new admin block will be finished by the end of the school year. Have a look at plans and some pictures taken recently.

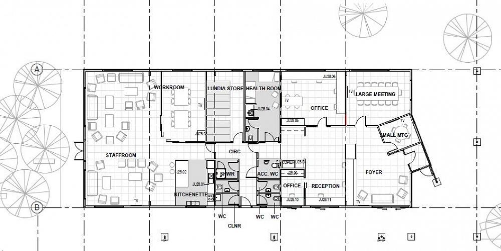
The layout of the new administration block. — Image by: Oaklands Redevelopment

The building includes a light-filled foyer and reception area, meeting rooms and a staff room. 

Artist's impression of the new reception area. — Image by: Oaklands Redevelopment
This will be the view from the reception desk when our administration block is finished.  — Image by: Oaklands Redevelopment
High ceilings and large windows feature in the administration block under construction. — Image by: Oaklands Redevelopment
Artist's impression of the new staff room. — Image by: Oaklands Redevelopment
The new staff room area under construction. — Image by: Oaklands Redevelopment
Artist's impressions of the finished outside of our new administration block. — Image by: Oaklands Redevelopment