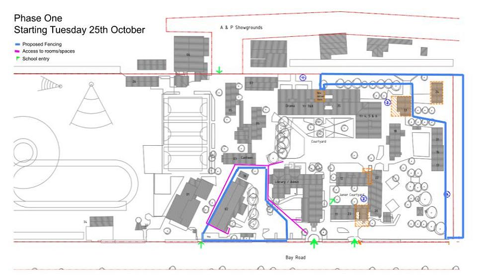
Fencing update
Exciting news as some of the fencing for our upcoming build goes up next week
This will mean that access to the school will be via the front entrance outside the administration block.
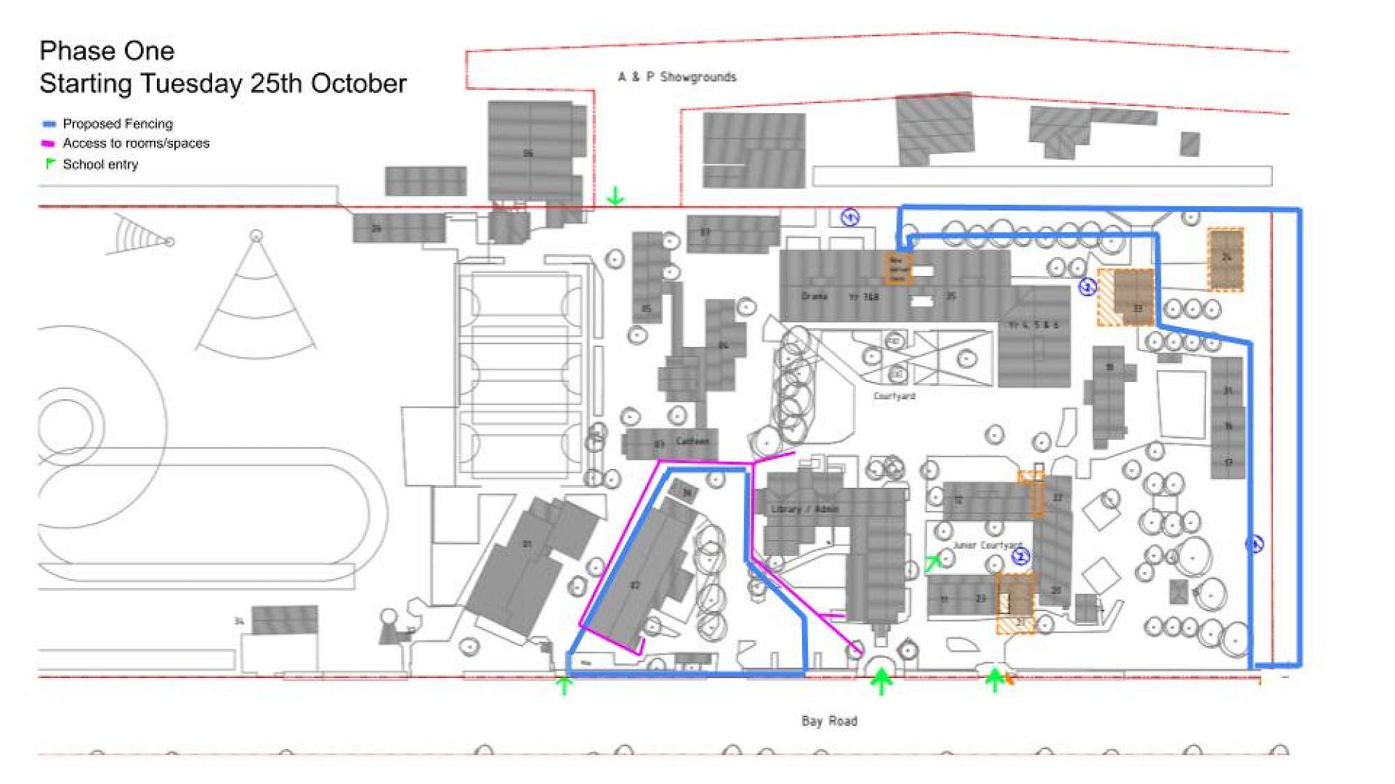
Exciting news as some of the fencing for our upcoming build goes up next week
This will mean that access to the school will be via the front entrance outside the administration block.